- Anlagenbau
- Getreidetrockner
- Fördergeräte
- Getreidesilo
- Reinigung
- Lohnfertigung Blechbearbeitungszentrum
- Gebraucht
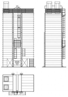
Durchlauftrockner DTH: Wärmerückgewinnung mit Umluftventilator
Trocknungsturm in ALU-Zink Ausführung:
|
Trockner - Ansichten
|
Der Trocknungsturm besteht aus 3 Abschnitten:
|
Luftstr�mung im Trockner
|




